Designing Homes - Building Dreams
Since 1992, Matt Richardson has been offering personalized design and drafting services. Located in the Rogue Valley, we create homes that reflect your unique vision.
Whether thinking about new construction, remodeling or renovating your existing home, or simply adding additional space, we would love the opportunity to help.


WHAT WE OFFFER
Home Design
Custom Solutions
We specialize in creating tailored building designs that reflect your unique vision, from luxurious homes to cozy cottages. Let us help make your dream a reality.
Matt Richardson, with extensive experience, provides personalized design and drafting services to ensure your home meets your desires, whether it’s modern and spacious, tiny, rustic, or something in between. Discover your perfect design today.
Explore your dream home through our expert design services. We offer comprehensive solutions that capture your personality and preferences in every project, ensuring satisfaction at every step.
Achieve Your Vision
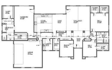
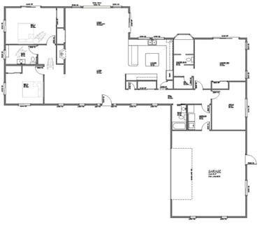
OUR PROJECTS
Explore our portfolio showcasing unique building designs tailored to meet the dreams and aspirations of our clients. Each project reflects our commitment to quality and creativity in every detail.








OUR PROCESS
Initial Consultation
1
2
Design Phase
3
Construction Drawings
We begin with an initial consultation to understand your vision and requirements for your dream home, ensuring we capture your ideas and preferences effectively.
During the design phase, we create detailed plans and drafts, incorporating your feedback to refine the design until it perfectly aligns with your expectations and lifestyle.
Finally, after making any necessary adjustments, we produce the builder’s set of construction drawings. This drawing set will meet the requirements of the building department, as well as enable the contractor to build according to your vision.
Get in Touch
Tel: 541.826.9636
Locally owned & operated in Southern Oregon
For inquiries about our building design services, please reach out to Matt Richardson. We look forward to helping you create your dream home.
Copyright © 2025 Mr. CADD All Rights Reserved
